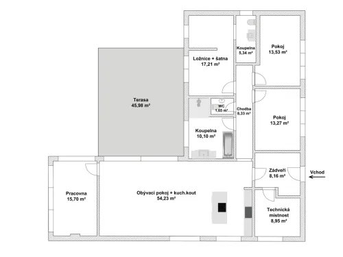
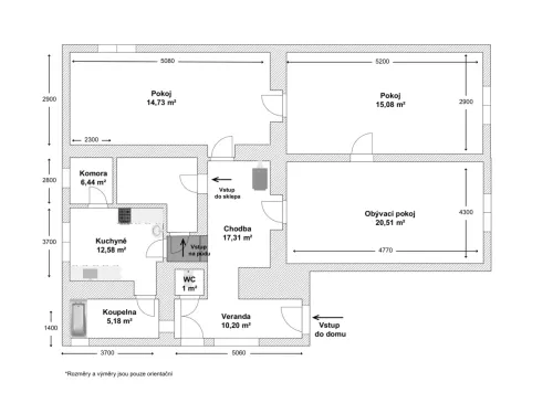
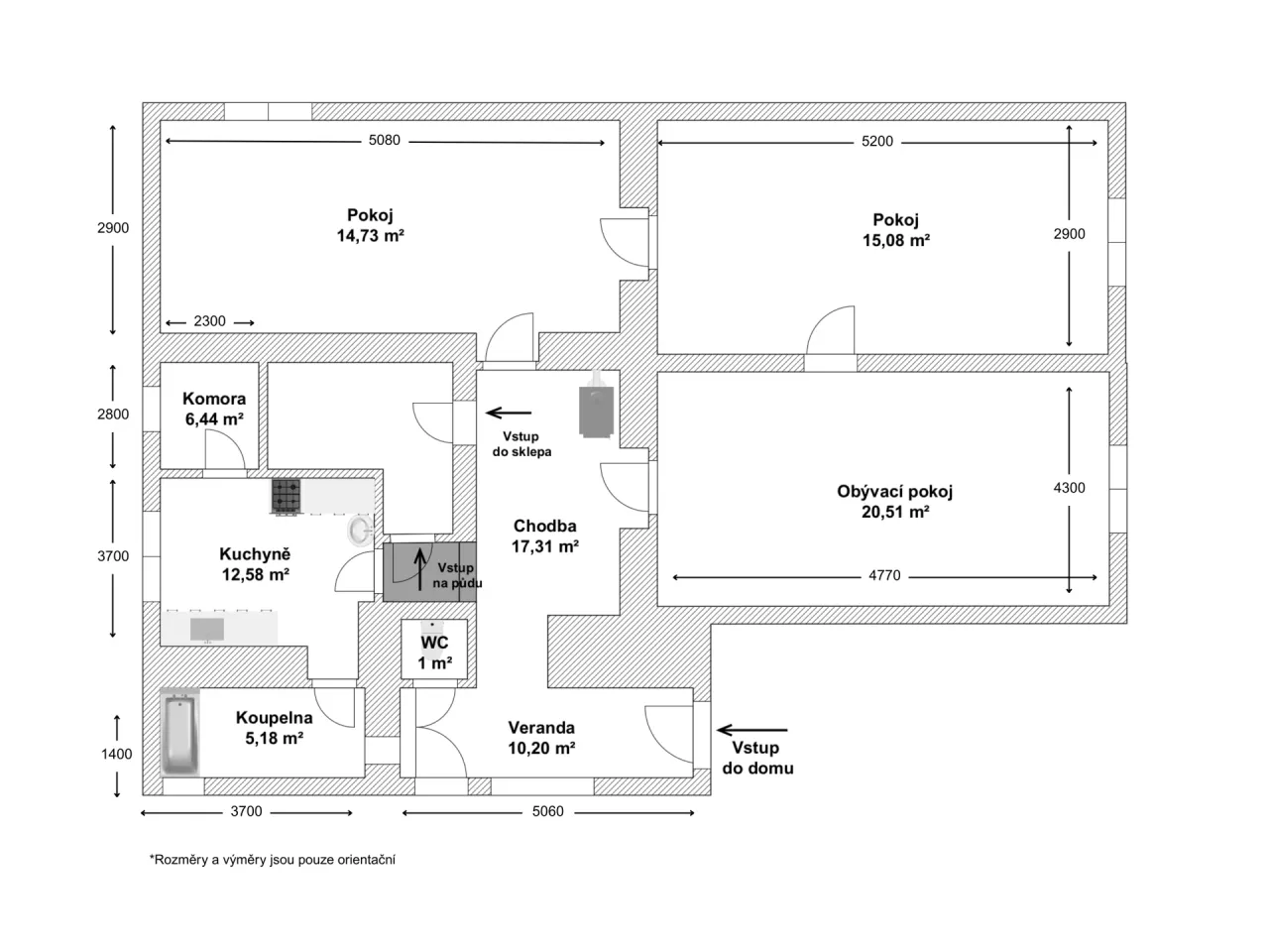
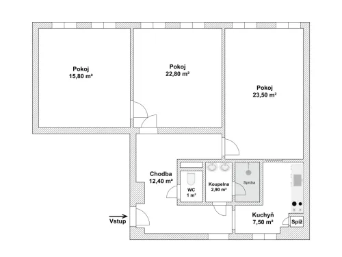
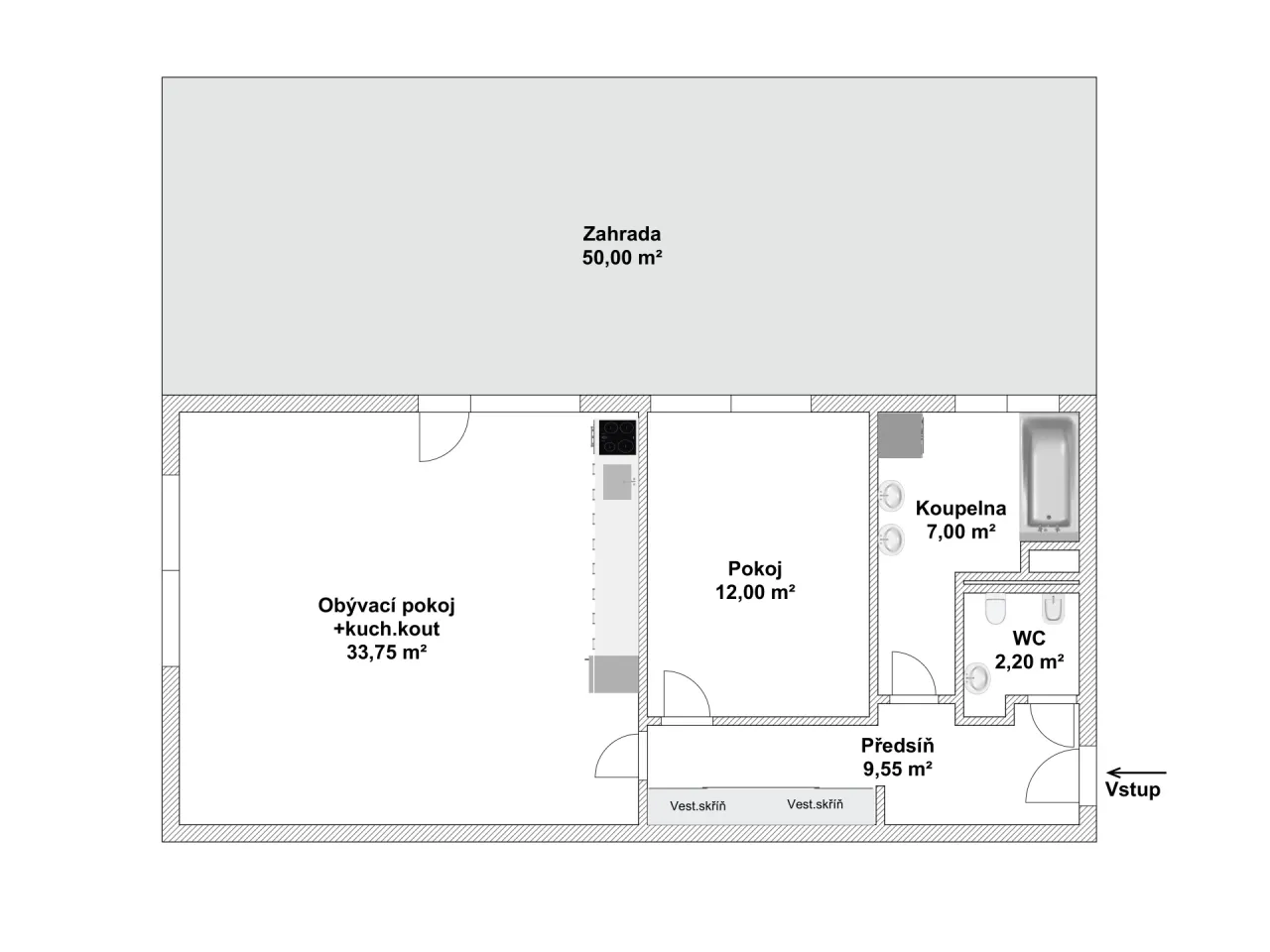
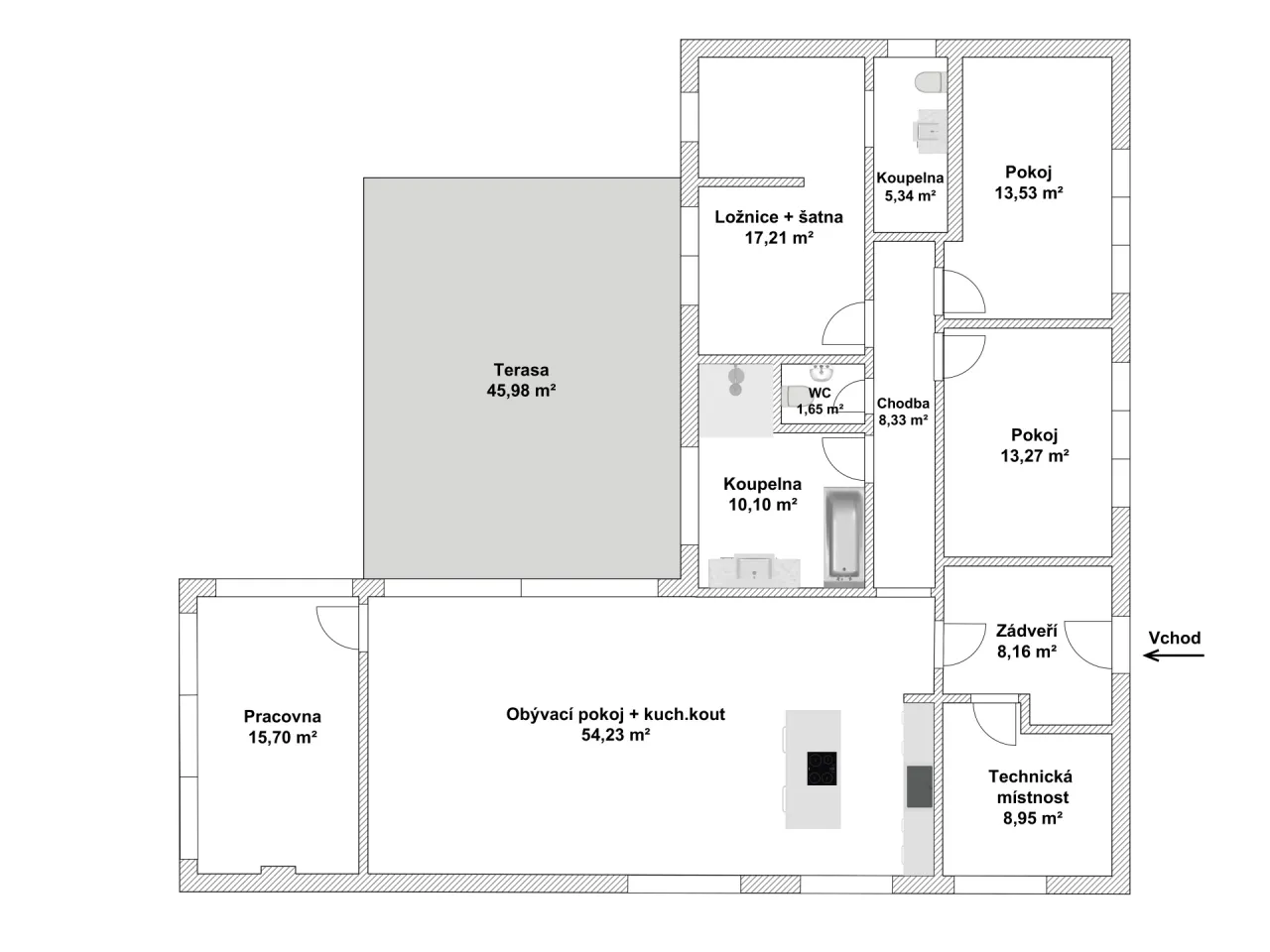
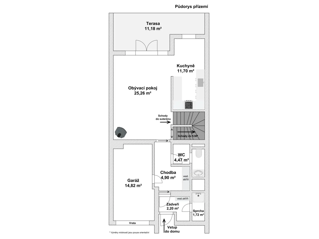
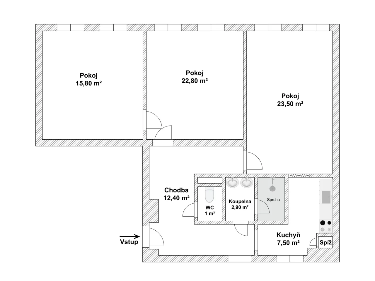
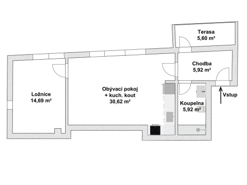
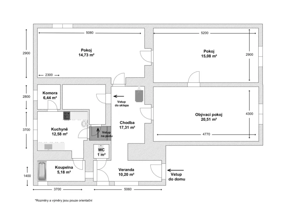
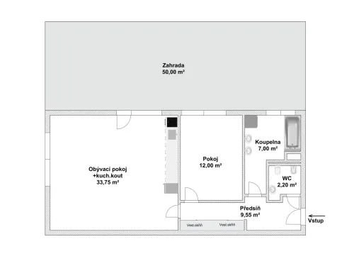
2D půdorys je tím nejzákladnějším plánkem. Přehledně zobrazuje obvodové stěny, dispozice nemovitosti a základní vybavení domácnosti. Při tvorbě 2D půdorysu si můžete vybrat ze široké nabídky volitelných prvků, které v plánku hrají důležitou roli. Výsledkem je výstižný půdorys, který se hodí i pro větší realitní kanceláře.
Všechny naše půdorysy zpracujeme nejpozději do 3 dnů od zaslání objednávky.
Cena: 349 Kč
Chybí vám barvy? Zkuste 2D barevný půdorys.
