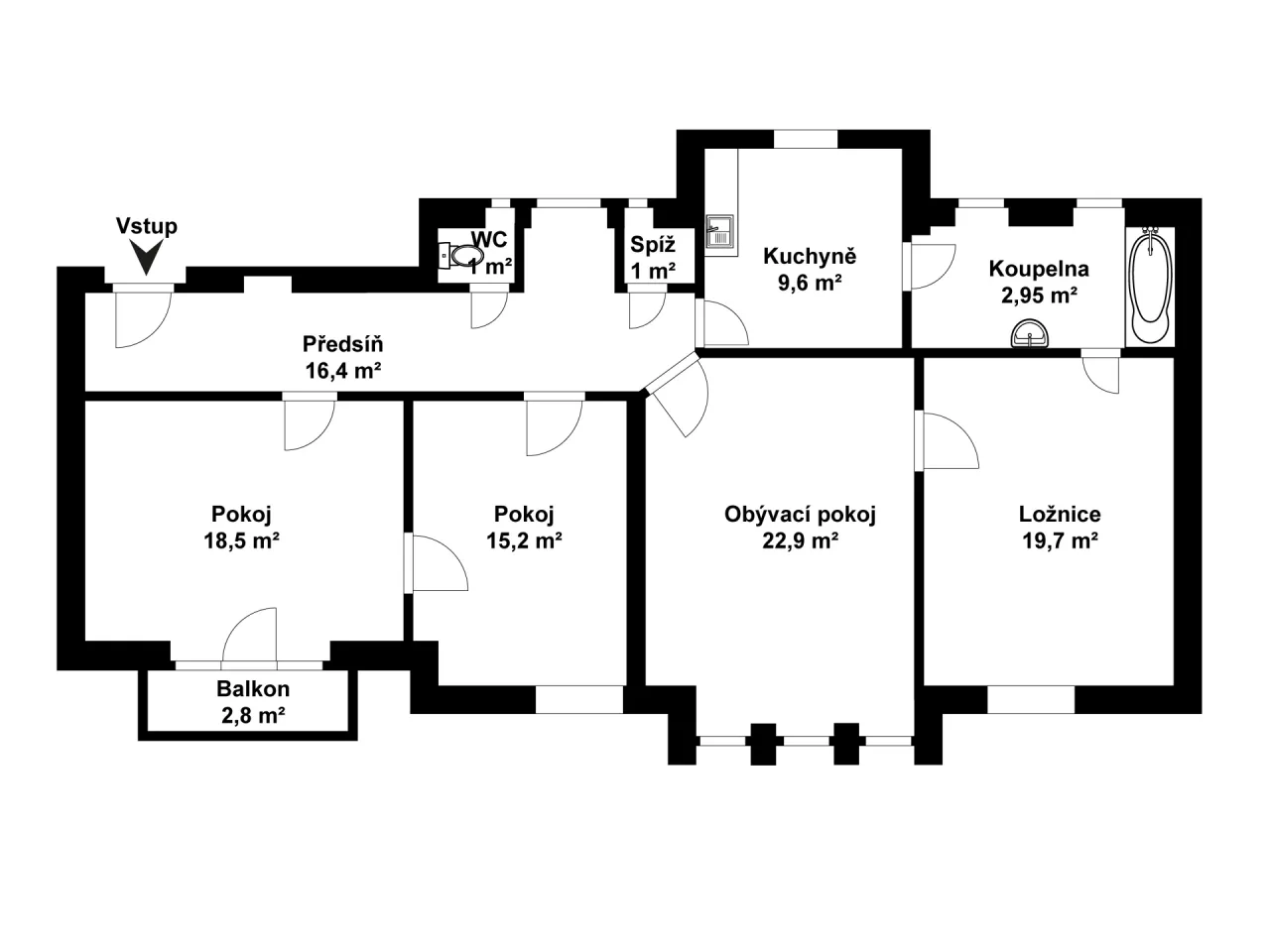
Půdorys na míru je naším nejindividuálnějším řešením pro náročné. Umožňuje plně propojit technické zobrazení nemovitosti s vaší vizuální identitou, firemními barvami nebo specifickým stylem makléře.
Při tvorbě tohoto plánku vycházíme z konkrétních přání klienta, díky čemuž vzniká unikátní výstup, který dokonale reprezentuje vaši značku.
Výsledkem je profesionální a estetický půdorys, který se stane nedílnou součástí vašeho brandingu.
Cena: individuální
